广州JS论坛一品香_深圳蒲友论坛技师推荐_佛山桑拿0760sn论坛_风楼阁全国信息2025登录入口
公司简介
企业文化
资质荣誉
我们的客户
发展历程
工程总包
工程模块
压力容器
项目管理
验证与文档
质量管理
公司资讯
展会会议
人才理念
公司招聘
联系方式
客户反馈
公司资讯
展会会议
今日新知
:
?
1
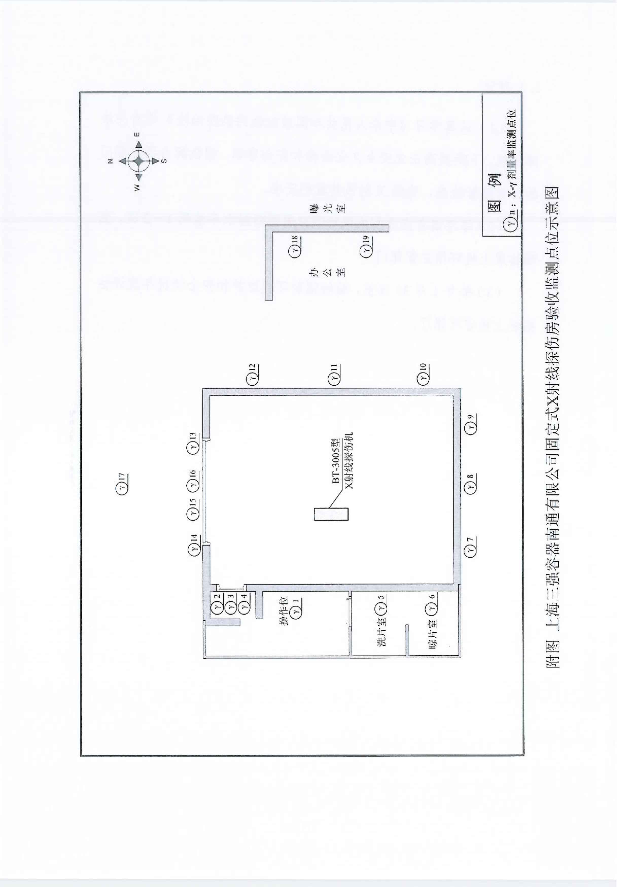
建设项目竣工环境保护验收监测报告(公告)
2014-9-10
Copyright © 2010 上海三强容器南通有限公司
苏ICP备2024121631号
技术支持:
沪联网络
E-mail:
info@shsanqiang.cn
地址: 江苏南通如皋市吴窑镇三强路1号 电话: 0513-87600808 4001178910
主站蜘蛛池模板:
宜都市
|
屯门区
|
南漳县
|
平凉市
|
呼和浩特市
|
泽普县
|
新丰县
|
阳朔县
|
通许县
|
同江市
|
南靖县
|
浦江县
|
高密市
|
海丰县
|
三江
|
河曲县
|
大渡口区
|
沁阳市
|
小金县
|
丹江口市
|
东乌珠穆沁旗
|
招远市
|
孝义市
|
五大连池市
|
肇源县
|
绥中县
|
新野县
|
犍为县
|
安庆市
|
广宁县
|
拜泉县
|
凤冈县
|
松桃
|
长宁县
|
邢台县
|
秦安县
|
泸定县
|
八宿县
|
溆浦县
|
高阳县
|
罗山县
|